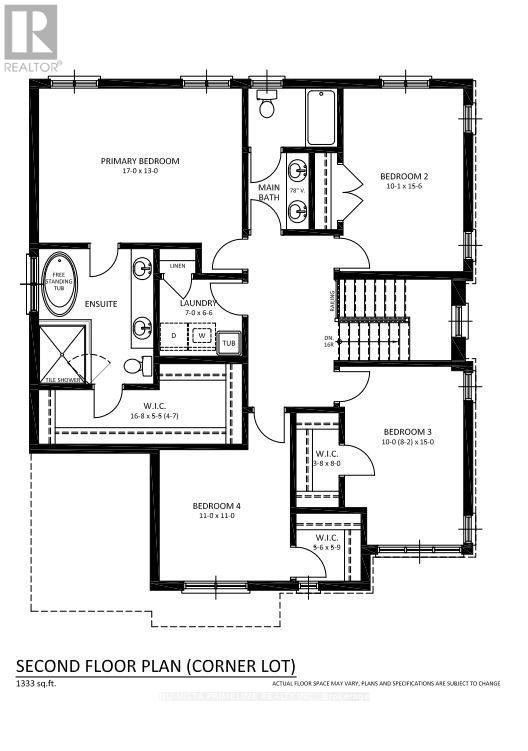
Welcome to the BEDFORD Home by Legacy Homes. TO BE BUILT ,this 2 story, 4 bedroom home has 2.5 baths. It has a beautiful exterior with brick and hardy board. It has sections of steel roof catching the eye of all on the drive by. This home has a total finished area of 2458 sq ft on 2 upper floors of total luxury.9 ft ceiling on the main floor thru. Hardwood and ceramic through the entire main floor and 2nd floor foyer and master bed room .Hardwood stairs leading to upstairs as well. The beautiful kitchen has a walk-in pantry , a centre island, quartz counters , wide open to eating area and a great room with gas fireplace and built-ins on either side, loads of windows across back of this home, also a large optional covered rear deck off kitchen overlooking yard, main floor office, main floor mud room off garage. Loads of windows across the back and front of this home. Going to the upper floor is hardwood stairs, the large primary bedroom and stunning ensuite with glass shower and standalone soaker tub, 2 sink vanity with quartz counters and also a big walk-in closet (Design your own closet organizers before close) ,Bedroom 2 is large with own large walk-in closet . 3rd and 4th bedrooms both have walk-in closets, second level separate stunning laundry room with quarts counters . The basement is exceptional to finish in the future, wide open and basement has extra high ceiling for future finishing. This is a very well layout home on a quiet crescent in a fantastic area only minutes to London. Legacy Homes has other layouts and designs but is also a complete Custom Builder that can make your ideas of your new home come true. Other lots to choose from including greenspace lots. Please call for a private viewing or visit us in An Open House Saturdays and Sundays . (id:57519)
Welcome to the BEDFORD Home by Legacy Homes. TO BE BUILT ,this 2 story, 4 bedroom home has 2.5 baths. It has a beautiful exterior with brick and hardy board. It has sections of steel roof catching the eye of all on the drive by. This home has a total finished area of 2458 sq ft on 2 upper floors of total luxury.9 ft ceiling on the main floor thru. ...
Hardwood and ceramic through the entire main floor and 2nd floor foyer and master bed room .Hardwood stairs leading to upstairs as well. The beautiful kitchen has a walk-in pantry , a centre island, quartz counters , wide open to eating area and a great room with gas fireplace and built-ins on either side, loads of windows across back of this home, also a large optional covered rear deck off kitchen overlooking yard, main floor office, main floor mud room off garage. Loads of windows across the back and front of this home. Going to the upper floor is hardwood stairs, the large primary bedroom and stunning ensuite with glass shower and standalone soaker tub, 2 sink vanity with quartz counters and also a big walk-in closet (Design your own closet organizers before close) ,Bedroom 2 is large with own large walk-in closet . 3rd and 4th bedrooms both have walk-in closets, second level separate stunning laundry room with quarts counters . The basement is exceptional to finish in the future, wide open and basement has extra high ceiling for future finishing. This is a very well layout home on a quiet crescent in a fantastic area only minutes to London. Legacy Homes has other layouts and designs but is also a complete Custom Builder that can make your ideas of your new home come true. Other lots to choose from including greenspace lots. Please call for a private viewing or visit us in An Open House Saturdays and Sundays . (id:57519)
Listed by Nu-vista Primeline Realty Inc.
The content on this website is owned or controlled by CREA and is protected
by copyright and other laws. It is intended
solely for the private, non-commercial use by individuals. Any other reproduction,
distribution or use of the content, in whole or in part, is specifically prohibited.
Prohibited uses include commercial use, “screen scraping”, “database scraping”, and
any other activity intended to collect, store, reorganize or manipulate the content of
this website.
REALTOR®, REALTORS®, and the REALTOR® logo are certification marks that are owned
by REALTOR® Canada Inc. and licensed exclusively to The Canadian Real Estate
Association (CREA). These certification marks identify real estate professionals who are
members of CREA and who must abide by CREA’s By-Laws, Rules, and the REALTOR®
Code. The MLS® trademark and the MLS® logo are owned by CREA and identify the
professional real estate services provided by members of CREA.
The information contained on this website is based on information
that is provided by members of CREA, who are responsible for its accuracy, through the DATA DISTRIBUTION FACILITY (DDF®) feed. CREA
reproduces and distributes this information as a service for its members, and assumes
no responsibility for its completeness or accuracy.
The information provided herein must only be used by consumers that have a bona fide interest in the purchase, sale, or lease of real estate and may not be used for any commercial
purpose or any other purpose. All information on LondonHomePrices.ca is presented by realtor Andres Usma from Blue Forest Realty Inc., Brokerage in London, Ontario.
LINKS
BLUE FOREST REALTY INC.
Independently Owned & Operated
931 Oxford St. E. London, ON
Get notified as soon as a new listing hits the market!
We respect your privacy. Unsubscribe anytime. _