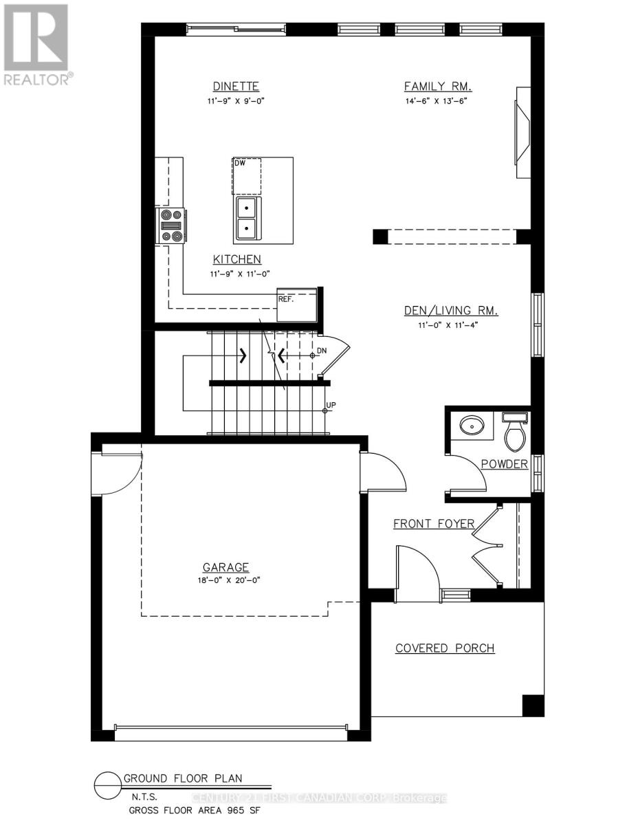
The Hamilton by Birani Design & Build is a beautifully crafted two-storey home offering 4 spacious bedrooms, 2.5 bathrooms, and a thoughtfully designed layout tailored for modem family living. The main floor features both a dedicated living room and a separate family room, providing the perfect balance of elegant entertaining space and everyday comfort. Upstairs, you'Il find four generously sized bedrooms, two full bathrooms, and the convenience of second floor laundry-ideal for growing families or those who simply appreciate functional design. Built With exceptional craftsmanship and attention to detail, this home is located in Talbot Village - Phase 7, one of London' s most sought-after family friendly communities. Residents enjoy proximity to a brand-new public school opening in 2025, walking distance to Ecole élémentaire La Pommeraie, and access to parks with basketball courts, sorer fields, and scenic pond-side trails. Talbot Village Shopping Plaza is just minutes away, offering No Frills, Dollarama, restaurants, banks, GoodLife Fitness, medical clinics, and more, with an exciting new commercial plaza on the way featuring a veterinarian, dental clinic, Starbucks, and additional conveniences. The brand-new YMCA, only a short walk away, brings state-of-the-an health and wellness amenities to the nelghbourhood. With quick access to Highways 401 and 402, easy routes to St. Thomas and the beaches of Port Stanley, and new bike lanes along Colonel Talbot Road connecting to Lambeth's charming village core, Talbot Village offers the perfect blend of modem convenience, natural beauty, and vibrant community living. To be Built (id:57519)
The Hamilton by Birani Design & Build is a beautifully crafted two-storey home offering 4 spacious bedrooms, 2.5 bathrooms, and a thoughtfully designed layout tailored for modem family living. The main floor features both a dedicated living room and a separate family room, providing the perfect balance of elegant entertaining space and everyday ...
comfort. Upstairs, you'Il find four generously sized bedrooms, two full bathrooms, and the convenience of second floor laundry-ideal for growing families or those who simply appreciate functional design. Built With exceptional craftsmanship and attention to detail, this home is located in Talbot Village - Phase 7, one of London' s most sought-after family friendly communities. Residents enjoy proximity to a brand-new public school opening in 2025, walking distance to Ecole élémentaire La Pommeraie, and access to parks with basketball courts, sorer fields, and scenic pond-side trails. Talbot Village Shopping Plaza is just minutes away, offering No Frills, Dollarama, restaurants, banks, GoodLife Fitness, medical clinics, and more, with an exciting new commercial plaza on the way featuring a veterinarian, dental clinic, Starbucks, and additional conveniences. The brand-new YMCA, only a short walk away, brings state-of-the-an health and wellness amenities to the nelghbourhood. With quick access to Highways 401 and 402, easy routes to St. Thomas and the beaches of Port Stanley, and new bike lanes along Colonel Talbot Road connecting to Lambeth's charming village core, Talbot Village offers the perfect blend of modem convenience, natural beauty, and vibrant community living. To be Built (id:57519)
Listed by Century 21 First Canadian Corp
The content on this website is owned or controlled by CREA and is protected
by copyright and other laws. It is intended
solely for the private, non-commercial use by individuals. Any other reproduction,
distribution or use of the content, in whole or in part, is specifically prohibited.
Prohibited uses include commercial use, “screen scraping”, “database scraping”, and
any other activity intended to collect, store, reorganize or manipulate the content of
this website.
REALTOR®, REALTORS®, and the REALTOR® logo are certification marks that are owned
by REALTOR® Canada Inc. and licensed exclusively to The Canadian Real Estate
Association (CREA). These certification marks identify real estate professionals who are
members of CREA and who must abide by CREA’s By-Laws, Rules, and the REALTOR®
Code. The MLS® trademark and the MLS® logo are owned by CREA and identify the
professional real estate services provided by members of CREA.
The information contained on this website is based on information
that is provided by members of CREA, who are responsible for its accuracy, through the DATA DISTRIBUTION FACILITY (DDF®) feed. CREA
reproduces and distributes this information as a service for its members, and assumes
no responsibility for its completeness or accuracy.
The information provided herein must only be used by consumers that have a bona fide interest in the purchase, sale, or lease of real estate and may not be used for any commercial
purpose or any other purpose. All information on LondonHomePrices.ca is presented by realtor Andres Usma from Blue Forest Realty Inc., Brokerage in London, Ontario.
LINKS
BLUE FOREST REALTY INC.
Independently Owned & Operated
931 Oxford St. E. London, ON
Get notified as soon as a new listing hits the market!
We respect your privacy. Unsubscribe anytime. _