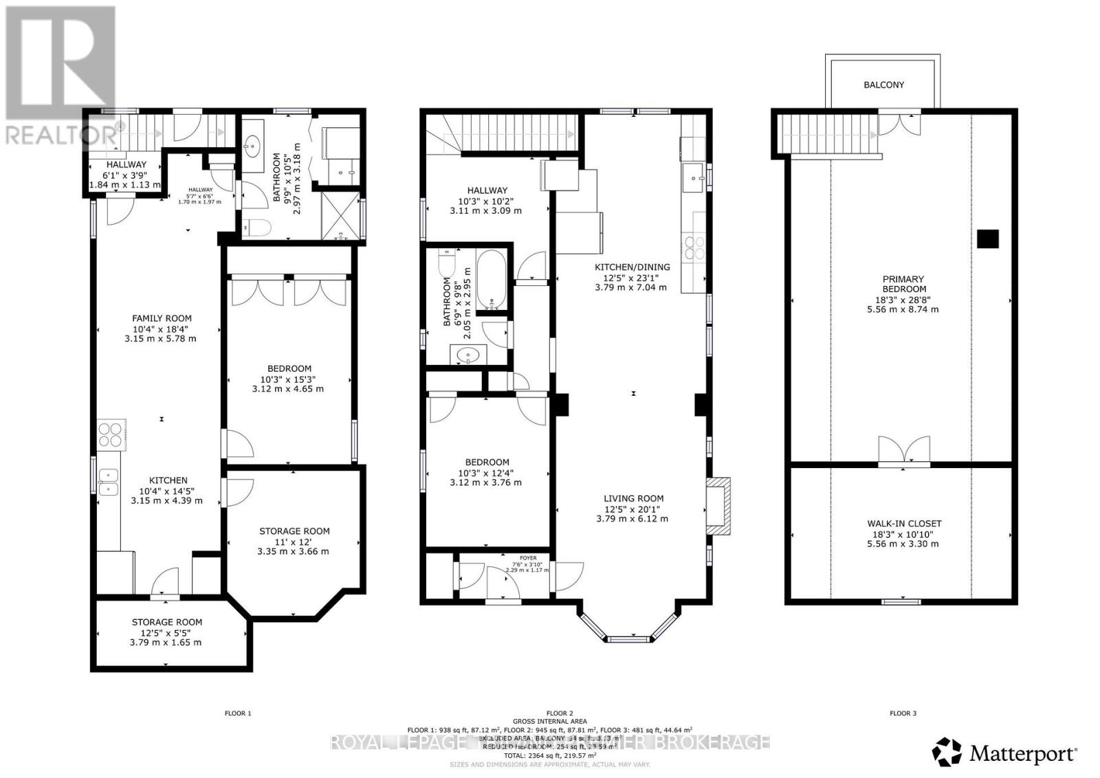
Beautifully updated home with separate granny suite in sought-after Old South! Step inside to an open-concept main level featuring an inviting living area ideal for both everyday living and entertaining. The spacious living room showcases an updated gas fireplace, large front window with charming leaded glass accents, and seamless flow into the showstopping kitchen. The kitchen boasts quartz countertops, stainless steel appliances including a wine fridge, coffee bar, open shelving, ample cabinetry, and a large island with plenty of seating. The main floor also offers convenient laundry, a bright bedroom, and a modern 4-piece bath. Upstairs, discover a private retreat currently used as the primary suite, complete with hardwood flooring, a generous walk-in closet and Juliet balcony overlooking the tranquil backyard. Laminate flooring throughout the main level adds a cohesive, modern touch to this character-filled home. The fully finished lower level features a beautifully updated one-bedroom granny suite with its own laundry and storage-perfect for extended family, guests, or potential rental income. Outdoor living is a delight with a spacious backyard featuring a deck and flagstone patio, as well as a welcoming front porch ideal for morning coffee on the quiet, tree-lined street. This home blends timeless charm with thoughtful modern updates, all within walking distance to Wortley Village's shops, cafes, parks, and transit. Updates include: Roof (2022), Electrical (2017), Waterproofing (2017), Basement Windows (2017, except bath and stairs), Furnace (approx. 2004), Kitchen & Kitchen Appliances (2022), Main Level Flooring (2022), Second Level Hardwood (2021). (id:57519)
Beautifully updated home with separate granny suite in sought-after Old South! Step inside to an open-concept main level featuring an inviting living area ideal for both everyday living and entertaining. The spacious living room showcases an updated gas fireplace, large front window with charming leaded glass accents, and seamless flow into the ...
showstopping kitchen. The kitchen boasts quartz countertops, stainless steel appliances including a wine fridge, coffee bar, open shelving, ample cabinetry, and a large island with plenty of seating. The main floor also offers convenient laundry, a bright bedroom, and a modern 4-piece bath. Upstairs, discover a private retreat currently used as the primary suite, complete with hardwood flooring, a generous walk-in closet and Juliet balcony overlooking the tranquil backyard. Laminate flooring throughout the main level adds a cohesive, modern touch to this character-filled home. The fully finished lower level features a beautifully updated one-bedroom granny suite with its own laundry and storage-perfect for extended family, guests, or potential rental income. Outdoor living is a delight with a spacious backyard featuring a deck and flagstone patio, as well as a welcoming front porch ideal for morning coffee on the quiet, tree-lined street. This home blends timeless charm with thoughtful modern updates, all within walking distance to Wortley Village's shops, cafes, parks, and transit. Updates include: Roof (2022), Electrical (2017), Waterproofing (2017), Basement Windows (2017, except bath and stairs), Furnace (approx. 2004), Kitchen & Kitchen Appliances (2022), Main Level Flooring (2022), Second Level Hardwood (2021). (id:57519)
Listed by Royal Lepage Triland Premier Brokerage
The content on this website is owned or controlled by CREA and is protected
by copyright and other laws. It is intended
solely for the private, non-commercial use by individuals. Any other reproduction,
distribution or use of the content, in whole or in part, is specifically prohibited.
Prohibited uses include commercial use, “screen scraping”, “database scraping”, and
any other activity intended to collect, store, reorganize or manipulate the content of
this website.
REALTOR®, REALTORS®, and the REALTOR® logo are certification marks that are owned
by REALTOR® Canada Inc. and licensed exclusively to The Canadian Real Estate
Association (CREA). These certification marks identify real estate professionals who are
members of CREA and who must abide by CREA’s By-Laws, Rules, and the REALTOR®
Code. The MLS® trademark and the MLS® logo are owned by CREA and identify the
professional real estate services provided by members of CREA.
The information contained on this website is based on information
that is provided by members of CREA, who are responsible for its accuracy, through the DATA DISTRIBUTION FACILITY (DDF®) feed. CREA
reproduces and distributes this information as a service for its members, and assumes
no responsibility for its completeness or accuracy.
The information provided herein must only be used by consumers that have a bona fide interest in the purchase, sale, or lease of real estate and may not be used for any commercial
purpose or any other purpose. All information on LondonHomePrices.ca is presented by realtor Andres Usma from Blue Forest Realty Inc., Brokerage in London, Ontario.
LINKS
BLUE FOREST REALTY INC.
Independently Owned & Operated
931 Oxford St. E. London, ON
I'm Online