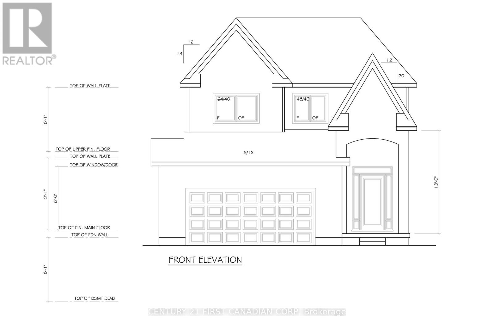
Modern Living Backing Onto Nature - The Emerald III Model to be build on a Walk-out Premium Lot. Don't miss this incredible opportunity to own a brand-new, thoughtfully designed home in the desirable Jacksons Meadows community. This Model offers 1,862 sq ft of functional, family-friendly living space with a striking steep front façade and a bright, open-concept layout. Backing onto a scenics trail and forest, this home delivers both privacy and picturesque views right from your backyard.The main floor features elegant hardwood flooring, oak stairs, and expansive windows that flood the space with natural light. The stylish kitchen is designed for both everyday living and entertaining, complete with a large quartz/granite island that flows into the dining area-perfectly positioned to enjoy the tranquil outdoor setting. The living room features an electric fireplace, creating a warm and modern ambiance. Upstairs, you'll find four spacious bedrooms, including a primary retreat with a walk-in closet finished 3-piece ensuite featuring quartz/granite countertops. A second 3-piece bathroom, convenient upper-level laundry, and a linen closet. Built by Vander Wielen Design & Build Inc., this to-be-built home allows buyers to personalize finishes, colours, and upgrades to match their unique style. Located in a rapidly growing neighbourhood, Jacksons Meadows offers exceptional convenience-close to schools, shopping, restaurants, parks, and quick access to Highway 401. A new state-of-the-art public school with childcare facilities is currently under construction nearby.Bonus: For a limited time, the builder is including a $7,500 appliance package. HST Rebate has been adjusted and is reflected in the listed price in accordance with the new temporarily HST Rebate regulations effective April 1, 2026. CONTACT Realtor for more details. Images are for illustration purposes only ; final design, materials, and finishes may vary depending on clients selections. (id:57519)
Modern Living Backing Onto Nature - The Emerald III Model to be build on a Walk-out Premium Lot. Don't miss this incredible opportunity to own a brand-new, thoughtfully designed home in the desirable Jacksons Meadows community. This Model offers 1,862 sq ft of functional, family-friendly living space with a striking steep front façade and a ...
bright, open-concept layout. Backing onto a scenics trail and forest, this home delivers both privacy and picturesque views right from your backyard.The main floor features elegant hardwood flooring, oak stairs, and expansive windows that flood the space with natural light. The stylish kitchen is designed for both everyday living and entertaining, complete with a large quartz/granite island that flows into the dining area-perfectly positioned to enjoy the tranquil outdoor setting. The living room features an electric fireplace, creating a warm and modern ambiance. Upstairs, you'll find four spacious bedrooms, including a primary retreat with a walk-in closet finished 3-piece ensuite featuring quartz/granite countertops. A second 3-piece bathroom, convenient upper-level laundry, and a linen closet. Built by Vander Wielen Design & Build Inc., this to-be-built home allows buyers to personalize finishes, colours, and upgrades to match their unique style. Located in a rapidly growing neighbourhood, Jacksons Meadows offers exceptional convenience-close to schools, shopping, restaurants, parks, and quick access to Highway 401. A new state-of-the-art public school with childcare facilities is currently under construction nearby.Bonus: For a limited time, the builder is including a $7,500 appliance package. HST Rebate has been adjusted and is reflected in the listed price in accordance with the new temporarily HST Rebate regulations effective April 1, 2026. CONTACT Realtor for more details. Images are for illustration purposes only ; final design, materials, and finishes may vary depending on clients selections. (id:57519)
Listed by Century 21 First Canadian Corp
The content on this website is owned or controlled by CREA and is protected
by copyright and other laws. It is intended
solely for the private, non-commercial use by individuals. Any other reproduction,
distribution or use of the content, in whole or in part, is specifically prohibited.
Prohibited uses include commercial use, “screen scraping”, “database scraping”, and
any other activity intended to collect, store, reorganize or manipulate the content of
this website.
REALTOR®, REALTORS®, and the REALTOR® logo are certification marks that are owned
by REALTOR® Canada Inc. and licensed exclusively to The Canadian Real Estate
Association (CREA). These certification marks identify real estate professionals who are
members of CREA and who must abide by CREA’s By-Laws, Rules, and the REALTOR®
Code. The MLS® trademark and the MLS® logo are owned by CREA and identify the
professional real estate services provided by members of CREA.
The information contained on this website is based on information
that is provided by members of CREA, who are responsible for its accuracy, through the DATA DISTRIBUTION FACILITY (DDF®) feed. CREA
reproduces and distributes this information as a service for its members, and assumes
no responsibility for its completeness or accuracy.
The information provided herein must only be used by consumers that have a bona fide interest in the purchase, sale, or lease of real estate and may not be used for any commercial
purpose or any other purpose. All information on LondonHomePrices.ca is presented by realtor Andres Usma from Blue Forest Realty Inc., Brokerage in London, Ontario.
LINKS
BLUE FOREST REALTY INC.
Independently Owned & Operated
931 Oxford St. E. London, ON
I'm Online