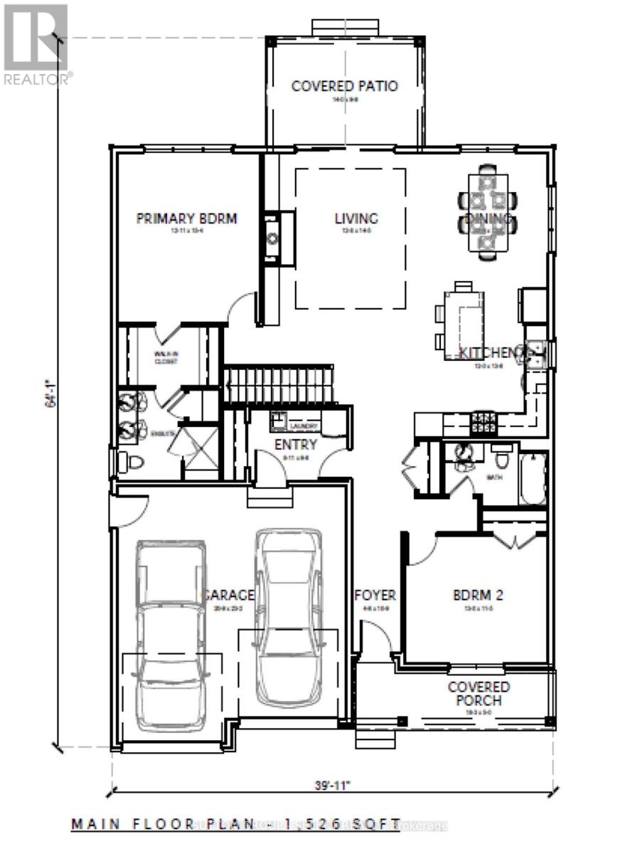
Listing price reflects anticipated expanded HST rebate for agreements between Apr 1, 2026-Mar 31, 2027,subject to government approval and the expanded HST rebate being in effect at closing and Buyer eligibility. If not in effect at closing purchase price shall be $929,900, reflecting the existing $24,000 Hst rebate credited back to the Builder/Seller. If the Buyer does not qualify for either the existing or anticipated expanded HST rebate the Buyer shall be responsible for full HST. Contact listing agent for details .... OUTSTANDING offering by award winning Rice Homes. The Somerset Model is 1526 sq ft. of exceptional finishes in a functional and attractive layout. Features include: open living area with 9 & 10' ceilings, gas fireplace, centre island in kitchen, 3 appliances, main floor laundry, master ensuite with walk in closet, pre-engineered hardwood floors, front and rear covered porches and a 2 car garage. Hardie Board exterior for low maintenance. Concrete drive & walkway. Call or email LA for long list of standard features and finishes. Newport landing features an incredible location just a short distance from all the amenities Grand Bend is famous for. Walk to shopping, beach, medical and restaurants! NOTE! short term rentals are not allowed in this development, enforced by restrictive covenants registered on title. Property has not been assessed yet. (id:57519)
Listing price reflects anticipated expanded HST rebate for agreements between Apr 1, 2026-Mar 31, 2027,subject to government approval and the expanded HST rebate being in effect at closing and Buyer eligibility. If not in effect at closing purchase price shall be $929,900, reflecting the existing $24,000 Hst rebate credited back to the ...
Builder/Seller. If the Buyer does not qualify for either the existing or anticipated expanded HST rebate the Buyer shall be responsible for full HST. Contact listing agent for details .... OUTSTANDING offering by award winning Rice Homes. The Somerset Model is 1526 sq ft. of exceptional finishes in a functional and attractive layout. Features include: open living area with 9 & 10' ceilings, gas fireplace, centre island in kitchen, 3 appliances, main floor laundry, master ensuite with walk in closet, pre-engineered hardwood floors, front and rear covered porches and a 2 car garage. Hardie Board exterior for low maintenance. Concrete drive & walkway. Call or email LA for long list of standard features and finishes. Newport landing features an incredible location just a short distance from all the amenities Grand Bend is famous for. Walk to shopping, beach, medical and restaurants! NOTE! short term rentals are not allowed in this development, enforced by restrictive covenants registered on title. Property has not been assessed yet. (id:57519)
Listed by Sutton Group - Select Realty
The content on this website is owned or controlled by CREA and is protected
by copyright and other laws. It is intended
solely for the private, non-commercial use by individuals. Any other reproduction,
distribution or use of the content, in whole or in part, is specifically prohibited.
Prohibited uses include commercial use, “screen scraping”, “database scraping”, and
any other activity intended to collect, store, reorganize or manipulate the content of
this website.
REALTOR®, REALTORS®, and the REALTOR® logo are certification marks that are owned
by REALTOR® Canada Inc. and licensed exclusively to The Canadian Real Estate
Association (CREA). These certification marks identify real estate professionals who are
members of CREA and who must abide by CREA’s By-Laws, Rules, and the REALTOR®
Code. The MLS® trademark and the MLS® logo are owned by CREA and identify the
professional real estate services provided by members of CREA.
The information contained on this website is based on information
that is provided by members of CREA, who are responsible for its accuracy, through the DATA DISTRIBUTION FACILITY (DDF®) feed. CREA
reproduces and distributes this information as a service for its members, and assumes
no responsibility for its completeness or accuracy.
The information provided herein must only be used by consumers that have a bona fide interest in the purchase, sale, or lease of real estate and may not be used for any commercial
purpose or any other purpose. All information on LondonHomePrices.ca is presented by realtor Andres Usma from Blue Forest Realty Inc., Brokerage in London, Ontario.
LINKS
BLUE FOREST REALTY INC.
Independently Owned & Operated
931 Oxford St. E. London, ON
I'm Online